Gewerbeimmobilie mit vielseitigem Nutzungspotenzial in Kirchzarten!

79199 Kirchzarten, Bürohaus zum Kauf

Kontaktdaten

Objektdaten

  • Objekt-ID
    7558
  • Objekttypen
    Büro/Praxis, Bürohaus
  • Adresse
    79199 Kirchzarten
  • Lage
    Industriegebiet
  • Nutzfläche ca.
    89,60 m²
  • Bürofläche ca.
    788,70 m²
  • Gesamtfläche ca.
    878,30 m²
  • Fläche von
    878,30 m²
  • Wesentlicher Energieträger
    Gas
  • Baujahr
    1975
  • Verfügbar ab
    nach Vereinbarung
  • Käufer­provision
    3,57 % inkl. MwSt.
    aus dem Kaufpreis
  • Kaufpreis
    800.000 EUR

Ausstattung / Merkmale

  • ✓ DV-Verkabelung

Energieausweis

  • Energieausweistyp
    Verbrauchs­ausweis
  • Ausstellungsdatum
    29.01.2026
  • Gültig bis
    28.01.2036
  • Gebäudeart
    Nichtwohngebäude
  • Baujahr
    1975
  • Primärenergieträger
    Gas
  • Endenergie­verbrauch Strom
    5,70 kWh/(m²·a)
  • Endenergie­verbrauch Wärme
    87,20 kWh/(m²·a)
0 25 50 75 100 125 150 175 200 225 250+ H G F E D C B A A+ H G F E D C B A A+ Endenergieverbrauch Strom 5,70 kWh/(m²·a) Endenergieverbrauch Wärme 87,20 kWh/(m²·a)

Objekt­beschreibung

Die angebotene Gewerbeimmobilie eröffnet hervorragende Entwicklungs- und Nutzungsperspektiven und überzeugt durch ihre hohe Flexibilität sowie ihrer klaren Gebäudestruktur. Das Gesamtareal erstreckt sich über eine Grundstücksfläche von ca. 1.107 m² und bietet damit eine solide Basis für unterschiedlichste gewerbliche Nutzungskonzepte.

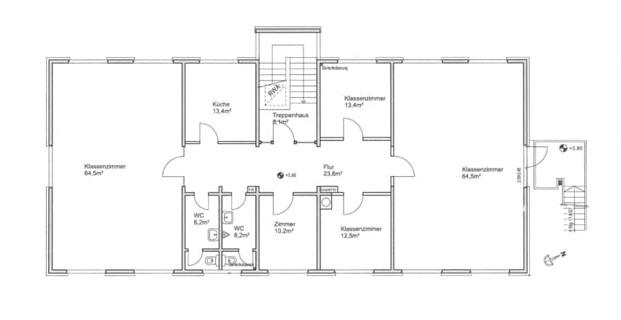
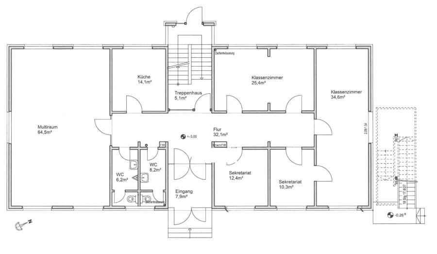
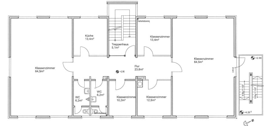
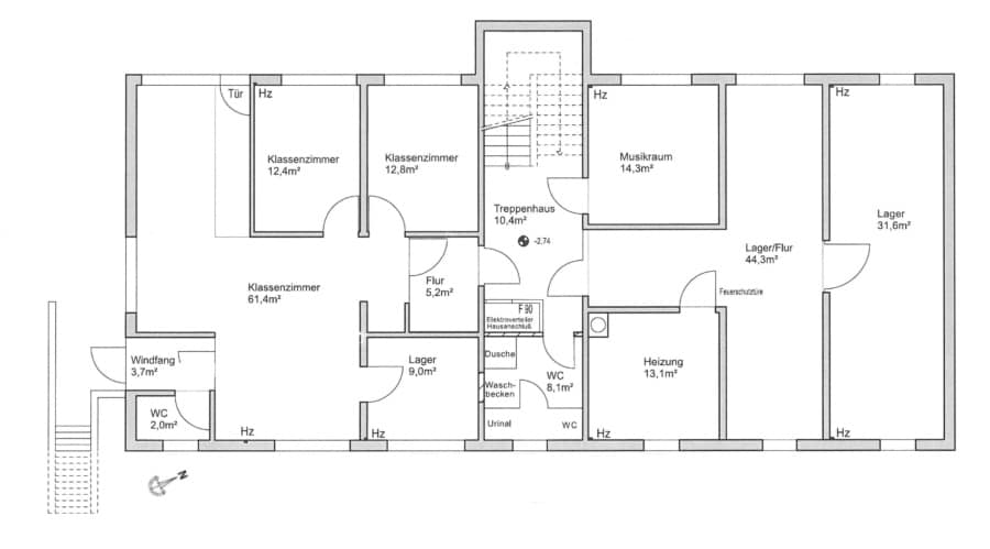
Das dreigeschossige, voll unterkellerte Büro- und Verwaltungsgebäude umfasst eine Gesamtfläche von ca. 878 m². Diese verteilen sich anteilig vom Untergeschoss bis zum 2. Obergeschoss auf jeweils ca. 219 m². Eine detaillierte Flächenberechnung (inkl. Ausweisung der Nutzfläche) sowie Grundrisspläne können wir Ihnen gerne zur Verfügung stellen.

Die verschiedenen Büroräume (derzeitige Schul-/Klassenräume) präsentieren sich in einem zeitgemäßen Zustand und profitieren von großzügigen Fensterfronten, die für eine helle, angenehme Arbeitsatmosphäre sorgen.

Für zusätzlichen Komfort sind die Fenster mit Raffstore-Außenjalousien ausgestattet, die insbesondere in den Sommermonaten eine effektive Verschattung ermöglichen und zu einem ausgeglichenen Raumklima beitragen. Die getrennten Sozialräume bieten sowohl Mitarbeitenden als auch Besuchern eine funktionale und praktische Ergänzung des Raumangebots.

Die Kombination aus Fliesen- und Teppichboden unterstreicht die alltägliche Funktionalität der Gewerbeeinheit.

Parkmöglichkeiten für Mitarbeiter und Besucher befinden sich unmittelbar vor dem Eingangsbereich und runden das Angebot in puncto Zugänglichkeit und Alltagstauglichkeit ab.

Das Objekt wird aktuell als Schul- und Bildungseinrichtung genutzt. Durch diese Nutzung verfügt die Immobilie über eine funktionale Raumaufteilung sowie infrastrukturelle Voraussetzungen, die sich sowohl für eine fortgeführte Bildungsnutzung als auch für alternative gewerbliche oder administrative Konzepte eignen. Die bestehende Gebäudestruktur eröffnet somit vielseitige Umnutzungs- und Entwicklungsmöglichkeiten.

Im Jahre 2011 wurde energetisch eine Photovoltaikanlage auf dem Dach der Liegenschaft installiert, welche für Eigenstrom sowie Einspeisung in das öffentliche Stromnetz genutzt wird.

Aus Gründen des Datenschutzes werden die Innenbilder der Gewerbeeinheit nachgelagert zur Verfügung gestellt. Eine Eigennutzung der Liegenschaft ist nach heutigem Stand ab dem 01.05.2026 möglich.

Vereinbaren Sie einen persönlichen Besichtigungstermin mit Herrn Max Werner. Wir freuen uns auf Ihre Anfrage.

Der guten Ordnung halber, möchten wir Sie im Vorfeld darüber informieren, dass wir vor jeder Besichtigung eines unserer Immobilienangebote eine Finanzierungsbestätigung einer Bank oder einen Kapitalnachweis zum Kauf der Immobilie benötigen.

Lage

Die Gemeinde Kirchzarten liegt strategisch günstig im Dreisamtal, rund 10 Kilometer östlich von Freiburg im Breisgau, und zählt zu den wirtschaftlich attraktiven Standorten im südlichen Schwarzwald. Die Lage verbindet eine leistungsfähige regionale Anbindung mit einem stabilen, infrastrukturell gut entwickelten Umfeld – ideale Voraussetzungen für gewerbliche Nutzungen.

Der Standort profitiert von einer hervorragenden Verkehrsanbindung: Über die Bundesstraße B31 besteht eine schnelle Verbindung in Richtung Freiburg, Titisee-Neustadt und Donaueschingen. Das Zentrum von Freiburg ist sowohl mit dem PKW als auch mit der S-Bahn in ca. 15 Minuten erreichbar. Kirchzarten ist in den Regio-Verkehrsverbund Freiburg (RVF) eingebunden und verfügt über einen eigenen Bahnhof mit direkter Anbindung an die Bahnlinie Freiburg–Titisee–Donaueschingen, was eine optimale Erreichbarkeit für Mitarbeiter, Kunden und Geschäftspartner gewährleistet.

Die Gemeinde bietet eine leistungsfähige Infrastruktur mit sämtlichen Einrichtungen des täglichen Bedarfs, gastronomischen Angeboten, Dienstleistungsbetrieben sowie medizinischer Versorgung. Dadurch ist eine stabile Standortversorgung für Mitarbeiter und Betriebe sichergestellt.

Neben den verkehrlichen Vorteilen überzeugt Kirchzarten durch ein wirtschaftsfreundliches Umfeld, kurze Wege zu Freiburg als Oberzentrum sowie die Nähe zu weiteren regionalen Wirtschaftsstandorten im Breisgau und Hochschwarzwald. Diese Standortfaktoren machen Kirchzarten zu einem attraktiven Gewerbestandort für Unternehmen unterschiedlichster Branchen – von Verwaltung und Dienstleistung bis hin zu Produktion, Logistik, Bildung und Schulung.

Die dargestellte Position der Immobilie ist nur eine ungefähre Angabe.

Direktanfrage

* Pflichtangaben
 SSL-verschlüsselt
Cookie Consent Banner von Real Cookie Banner