Exklusiv, stilvoll, herrschaftlich – Altbauvilla in bevorzugter Lage

79104 Freiburg, Villa zum Kauf

Kontaktdaten

Objektdaten

  • Objekt-ID
    7408
  • Objekttypen
    Haus, Villa
  • Adresse
    79104 Freiburg
  • Lage
    Wohngebiet
  • Wohnfläche ca.
    642,10 m²
  • Grund­stück ca.
    771 m²
  • Zimmer
    15
  • Küche
    Einbauküche
  • Wesentlicher Energieträger
    Gas
  • Baujahr
    1912
  • Käufer­provision
    3,57 % inkl. MwSt.
    aus dem Kaufpreis
  • Kaufpreis
    3.950.000 EUR

Ausstattung / Merkmale

  • ✓ Altbau
  • ✓ Denkmalgeschützt
  • ✓ Einbauküche
  • ✓ Fliesenboden
  • ✓ Gäste-WC
  • ✓ Parkettboden
  • ✓ Swimmingpool

Energieausweis

  • Energieausweis
    nicht erforderlich

Objekt­beschreibung

Beschreibung

In einer der begehrtesten Wohnlagen von Freiburg, eingebettet in die ruhige und zugleich zentrale Nachbarschaft im Stadtteil Herdern, präsentiert sich diese herrschaftliche Altbauvilla aus dem Jahr 1912 als wahres Unikat mit zeitlosem Charme und beeindruckendem Raumangebot. Das prachtvolle Anwesen verbindet historische Eleganz mit modernem Wohnkomfort und bietet ein stilvolles Refugium für anspruchsvolle Genießer.

Schon der erste Eindruck überzeugt: Die stilvoll gestaltete Zaun-Einfriedung aus der Werkstatt des Kunstschmieds Christian Traubel, der u.a. für die Restaurierung der Toranlagen des Schwetzinger Schlosses und des Bundesgerichtshofs in Karlsruhe verantwortlich zeichnete. Der gepflegte Vorgarten führt Sie zum einladenden Entrée der Liegenschaft, die sich auf ca. 642 m² Wohn- und Nutzfläche über alle Etagen erstreckt. Charakteristische Sprossenfenster, Fischgrätparkett, hohe Decken mit Stuckverzierungen, ein liebevoll restauriertes Holztreppenhaus sowie hochwertige Materialien verleihen der erst 2015 umfangreich sanierten Liegenschaft eine unverwechselbare Ausstrahlung.

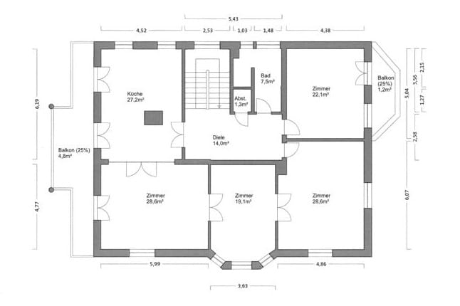
Vom Eingangsbereich gelangen Sie ins derzeitige Arbeitszimmer und das große Musikzimmer mit großflächiger Fensterfront – ein idealer Ort für kreative Stunden oder gesellige Abende – zudem für eine gewerbliche Nutzung (Architekturbüro, Praxis, Kanzlei) gestattet. Der sonnige Balkon mit direktem Zugang in den Garten erweitert den Raum ins Freie. Angrenzend liegt die helle und moderne Einbauküche (Sommerküche, Empfangsküche). Ein Gäste-WC, ein Windfang sowie ein Abstellraum vervollständigen das großzügige Raumangebot auf dieser Ebene.

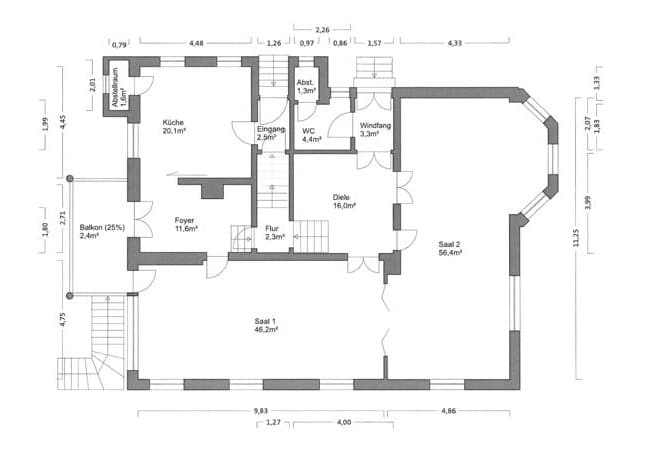
Das Holztreppenhaus führt in die oberen Etagen des Hauses. Im Obergeschoss befindet sich ebenfalls eine moderne Einbauküche (Hauptküche) mit angrenzendem Esszimmer. Von beiden Räumen gelangen Sie auf den sonnigen Balkon. Hohe Flügeltüren unterstreichen die Eleganz der Räume und der Bibliothek mit dem Wohnzimmer. Ein helles Gästezimmer mit eigenem Balkon und dazugehörigen Tageslichtbad runden diese Etage optimal ab.

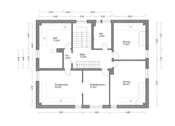
Familienfreundlich und komfortabel präsentiert sich das Dachgeschoss mit zwei geräumigen Kinderzimmern und einem eigenen, modernen Badezimmer (eingerichtet von Flagstone/Hamburg). Das private Schlafzimmer-Ensemble überzeugt mit eigenem Ankleidezimmer sowie großzügigem, luxuriösem Badezimmer mit freistehender, italienischer Designer-Badewanne, großer Regendusche/effegibi-Dampfdusche/Hamam und zahlreichen stilvollen Details.

Der ausgebaute Dachspitz mit offenem Sichtgebälk und offener Galerie beherbergt ein weiteres Zimmer (z.B. Gästezimmer, Au-Pair Zimmer) mit eigener Küchenzeile und Kamin – ein idealer Rückzugsort.

Auch bei der Auswahl der Materialien spiegelt sich der hohe Anspruch an Ästhetik und Qualität wider: Im Erdgeschoss unterstreicht ein hochwertiges Fischgrätparkett die repräsentative Ausstrahlung der Wohnräume. Dieser edle Parkettboden zieht sich stilvoll in das Obergeschoss. In Küche und Badezimmer wurden sorgfältig ausgewählte Jugendstilfliesen verlegt. Die Wohnräume im Dachgeschoss und im Dachspitz sind mit geölten Echtholzdielen aus Eiche ausgestattet. Alle Bäder und die Hauptküche sind mit einer Fussbodenheizung ausgestattet. Alle fünf Küchen sind von bulthaup.

Die Immobilie bietet zudem – via eigenem Eingang – drei separate Einlieger- bzw. Ferienwohnungen jeweils mit Küchenzeile und Duschbadezimmer. Teilweise mit Gartenzugang, perfekt für Gäste, Au-pair oder Familienmitglieder. Ergänzt wird das Untergeschoss durch Kellerräume und eine Waschküche. Im Garten sorgt der eigene Salzwasserpool mit kindersicherem Verdeck und Wärmepumpe für entspannte Sommertage und macht das Anwesen zu einer Oase mitten in der Stadt.

Vereinbaren Sie für diese außergewöhnliche Stadtvilla einen persönlichen Besichtigungstermin mit Herrn Christian Haberberg oder Herrn Andreas Stauß. Wir freuen uns auf Ihre Kontaktaufnahme.

Sonstiges

Der guten Ordnung halber, möchten wir Sie im Vorfeld darüber informieren, dass wir vor jeder Besichtigung eines unserer Immobilienangebote eine Finanzierungsbestätigung einer Bank oder einen Kapitalnachweis zum Kauf der Immobilie benötigen.

Lage

Im Westen die Rheinebene, im Osten der Schwarzwald. Die Schweiz und Frankreich gleich über die Grenze. Die Breisgau Metropole Freiburg mit ihren über 230.000 Einwohnern gehört nicht grundlos zu den beliebtesten Städten Deutschlands. Und das gilt auch für den bevorzugten Villen-Stadtteil Herdern.

Die Innenstadt mit ihrer historischen Altstadt und den berühmt-berüchtigten Bächle ist nur einen Katzensprung entfernt. Und doch bleibt man in Herdern gern unter sich, trifft sich auf dem Herdermer Kirchplatz, gönnt sich seine Auszeit in der grünen Halbhöhen-Natur, genießt die buntgemischte Gastronomie und nutzt die optimale Infrastruktur.

Ob Schule oder Schuster, Apotheke oder Arzt, öffentliche Verkehrsmittel oder vielfältigste Einkaufsmöglichkeiten – im Stadtteil Herdern ist alles in greifbarer Nähe.

Die dargestellte Position der Immobilie ist nur eine ungefähre Angabe.

Direktanfrage

* Pflichtangaben
 SSL-verschlüsselt
Cookie Consent Banner von Real Cookie Banner