Moderne Maisonettewohnung mit zwei Balkonen in ruhiger, zentraler Lage von Denzlingen

79211 Denzlingen, Maisonettewohnung zum Kauf

Kontaktdaten

Objektdaten

  • Objekt-ID
    7504
  • Objekttypen
    Maisonettewohnung, Wohnung
  • Adresse
    79211 Denzlingen
  • Wohnfläche ca.
    88,64 m²
  • Zimmer
    3
  • Schlafzimmer
    2
  • Badezimmer
    2
  • Balkone
    2
  • Küche
    Einbauküche
  • Wesentlicher Energieträger
    Gas
  • Baujahr
    1993
  • Zustand
    gepflegt
  • Käufer­provision
    3,57 % zzgl. MwSt.
    aus dem Kaufpreis
  • Hausgeld
    596,00 EUR
  • Kaufpreis
    399.000 EUR

Ausstattung / Merkmale

  • ✓ Balkon
  • ✓ Einbauküche
  • ✓ Gäste-WC
  • ✓ Keller

Energieausweis

  • Energieausweistyp
    Verbrauchs­ausweis
  • Ausstellungsdatum
    30.10.2017
  • Gültig bis
    30.10.2027
  • Gebäudeart
    Wohngebäude
  • Baujahr
    1993
  • Primärenergieträger
    Gas
  • Endenergie­verbrauch
    104,00 kWh/(m²·a)
  • Energie­effizienz­klasse
    D
0 25 50 75 100 125 150 175 200 225 250+ H G F E D C B A A+ H G F E D C B A A+ Endenergieverbrauch 104,00 kWh/(m²·a)

Objekt­beschreibung

Die Wohnanlage wurde im Jahr 1993 erbaut und überzeugt durch ihre solide Bauweise und gepflegte Erscheinung. Sie besteht aus mehreren Mehrfamilienhäusern mit gemeinsamer Tiefgarage. Im Jahr 2021 wurden in der Anlage die Heizungsanlage erneuert, energiesparende Fenster eingebaut sowie die Außenfassade gestrichen.

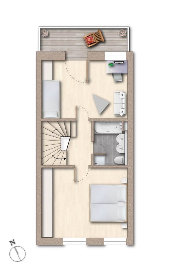
Diese schöne 3-Zimmer-Maisonettewohnung mit ca. 89 m² Wohnfläche erstreckt sich über das Erdgeschoss und das 1. Obergeschoss und verfügt über zwei sonnige Westbalkone mit schönem Ausblick ins Grüne.

Im Erdgeschoss erwartet Sie ein großzügiger, offener Wohn- und Essbereich mit Zugang zum Balkon. Die angrenzende, moderne Einbauküche ist zeitlos gestaltet, bietet viel Arbeitsfläche sowie reichlich Stauraum und ist bereits im Kaufpreis enthalten. Ein modernes Duschbad rundet diese Etage ab.

Über eine offene Wendeltreppe gelangen Sie in das 1. Obergeschoss, wo sich zwei gut geschnittene Zimmer befinden – eines davon mit Zugang zum zweiten Westbalkon. Das stilvolle Badezimmer mit Badewanne vervollständigt das Raumangebot dieser Etage.

Ein Kellerraum sowie gemeinschaftliche Räume (z. B. Fahrradraum, Trockenraum) stehen ebenfalls zur Verfügung. Optional können bis zu zwei Tiefgaragenstellplätze in der hauseigenen Tiefgarage zu jeweils 20.000,00 € erworben werden.

Die Lage überzeugt durch ihre hervorragende Infrastruktur: Einkaufsmöglichkeiten, Ärzte, Bushaltestelle, Schulen, Sportstätten und das Schwimmbad mit Hallenbad sind fußläufig erreichbar. Eine der vielen Grünflächen Denzlingens befindet sich in direkter Nähe und lädt zu Spaziergängen und Erholung im Freien ein. Diese Wohnung vereint Komfort, Licht und Lage – ideal für Paare, kleine Familien oder alle, die ein behagliches Zuhause in gepflegter Umgebung suchen.

Die Wohnung ist nicht vermietet und ist bezugsfrei.
Per Wirtschaftsplan (gültig ab 01.01.2026) wurden die monatlichen Vorauszahlungen des Hausgeldes für die Wohnung auf 487,00 € festgelegt. Im Hausgeld sind die Zuführung zur Erhaltungsrücklage sowie die Rückführung eines L-Bank-Darlehens für die oben aufgeführten Sanierungsmaßnahmen aus dem Jahr 2021 in Höhe von insgesamt ca. 157,00 € enthalten. Das für die Sanierung aufgenommene L-Bank-Darlehen wird in wenigen Jahren zurückbezahlt sein – im Anschluss wird das monatliche Hausgeld um den Betrag der Tilgungsrate reduziert.

Der guten Ordnung halber möchten wir Sie im Vorfeld darüber informieren, dass wir vor jeder Besichtigung eine Finanzierungsbestätigung einer Bank oder einen Kapitalnachweis zum Kauf der Immobilie benötigen.

Vereinbaren Sie Ihren persönlichen Besichtigungstermin mit Herrn Rick Petersen. Wir freuen uns auf Ihre Kontaktaufnahme.

Lage

Die Wohnung befindet sich zwischen der Hauptstraße und der Schwarzwaldstraße im Ortszentrum von Denzlingen (Landkreis Emmendingen, Baden-Württemberg).

Die Gemeinde Denzlingen liegt am Ende des Glottertals ca. 8 km nördlich von der Stadt Freiburg und besticht durch ihre malerische Landschaft und die gute Anbindung an Freiburg und die umliegenden Gemeinden. Freiburg, bekannt für seine historische Altstadt, seine Universität und die Nähe zu den Weinbergen des Kaiserstuhls, ist nur eine kurze Autofahrt entfernt. Die Kombination aus städtischem Flair und ländlicher Idylle macht die Region zu einem attraktiven Wohnort für Jung und Alt.

Der Bahnhof von Denzlingen sowie die gute Anbindung an das öffentliche Verkehrsnetz sind große Pluspunkte für den Standort Denzlingen.

Die Umgebung von Denzlingen bietet zahlreiche Freizeitmöglichkeiten, sei es Wandern und Radfahren im Schwarzwald oder Besuche der nahegelegenen Thermalbäder. Zudem locken zahlreiche kulturelle Veranstaltungen und Festivals Besucher aus nah und fern an. Die Maisonettewohnung in dieser Region vereint somit die Vorzüge eines beschaulichen Wohnorts mit der Vielfalt an Freizeit- und Kulturangeboten der umliegenden Großstadt.

Die dargestellte Position der Immobilie ist nur eine ungefähre Angabe.

Direktanfrage

* Pflichtangaben
 SSL-verschlüsselt
Cookie Consent Banner von Real Cookie Banner