Moderne Logistikfläche zur Miete – Perfekt angebunden im Gewerbegebiet

79379 Müllheim, Lager zur Miete

Kontaktdaten

Objektdaten

  • Objekt-ID
    7612
  • Objekttypen
    Halle/Lager/Produktion, Lager
  • Adresse
    79379 Müllheim
  • Lage
    Gewerbegebiet
  • Nutzfläche ca.
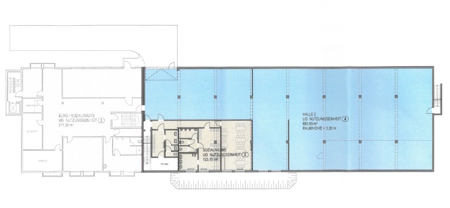
    683,69 m²
  • Gesamtfläche ca.
    683,69 m²
  • Hallenhöhe
    3,20 m
  • Wesentlicher Energieträger
    Gas
  • Mieter­provision (gewerblich)
    3 x Monatsnettokaltmieten zzgl. MwSt.
  • Kaltmiete
    2.700,00 EUR

Ausstattung / Merkmale

  • ✓ Fliesenboden
  • ✓ Personenaufzug

Energieausweis

  • Energieausweistyp
    Bedarfs­ausweis
  • Ausstellungsdatum
    22.04.2026
  • Gültig bis
    22.09.2035
  • Gebäudeart
    Nichtwohngebäude
  • Primärenergieträger
    Gas
  • Endenergie­bedarf
    163,50 kWh/(m²·a)
  • Endenergie­bedarf Strom
    28,00 kWh/(m²·a)
  • Endenergie­bedarf Wärme
    114,00 kWh/(m²·a)
0 25 50 75 100 125 150 175 200 225 250+ H G F E D C B A A+ H G F E D C B A A+ Endenergiebedarf Strom 28,00 kWh/(m²·a) Endenergiebedarf Wärme 114,00 kWh/(m²·a)

Objekt­beschreibung

Die Gewerbeimmobilie umfasst ein Verwaltungsgebäude, das von verschiedenen Unternehmen genutzt wird, sowie mehrere Produktions- und Lagerhallen. Das Objekt überzeugt durch einen ausgewogenen Mix aus Industrie- und Gewerbeflächen.

Dieses Mietangebot beinhaltet eine Lagerfläche von ca. 683 m² mit einer Deckenhöhe von rund 3,20 m. Die direkte Zufahrt ermöglicht eine komfortable Anlieferung und unterstützt eine effiziente Logistik.

Optional können Sozialräume im Untergeschoss mit einer Fläche von ca. 123 m² für eine monatlich Nettokaltmiete von EUR 600,-- zusätzlich angemietet werden.

Der durchdachte Grundriss bietet vielseitige Nutzungsmöglichkeiten und eignet sich für unterschiedlichste Geschäftskonzepte.

Parkmöglichkeiten für Kunden und Mitarbeiter stehen unmittelbar vor der Einheit zur Verfügung.

Der monatliche Netto-Kaltmietpreis für die Gewerbefläche bei EUR 2.700,-- zzgl. Nebenkosten zzgl. 19 % gesetzlicher Mehrwertsteuer.

Bei Abschluss des Mietvertrages ist für die Einheit eine Kaution in Höhe von 3-Netto-Kaltmieten und eine Vermittlungsprovision in Höhe von 3-Nettokaltmieten zzgl. 19 % gesetzlicher Mehrwertsteuer fällig.

** Der Energieausweis ist derzeit in Bearbeitung**

Vereinbaren Sie einen Besichtigungstermin mit Herrn Wolfgang Hege.

Wir freuen uns auf Ihre Anfrage.

Lage

Die Stadt Müllheim liegt im Südwesten Deutschlands, sehr verkehrsgünstig an der Bundestrasse B3 sowie in der Nähe zur Bundesautobahn A5 zwischen Freiburg, Basel (Schweiz) und Mulhouse (Frankreich). Durch die moderne Infrastruktur haben sich viele Unternehmen und Investoren im Gewebegebiet West in Müllheim angesiedelt.

Die hier angebotene Liegenschaft liegt im Gewerbegebiet West in Müllheim mit guter Anbindung an die Bundesautobahn A5 Karlsruhe-Basel.

Die dargestellte Position der Immobilie ist nur eine ungefähre Angabe.

Direktanfrage

* Pflichtangaben
 SSL-verschlüsselt
Cookie Consent Banner von Real Cookie Banner